Detached Single Family
Waterfront: Bayfront
MLS: 326268
4839 SR 30-A Port St. Joe, FL 32456$699,000
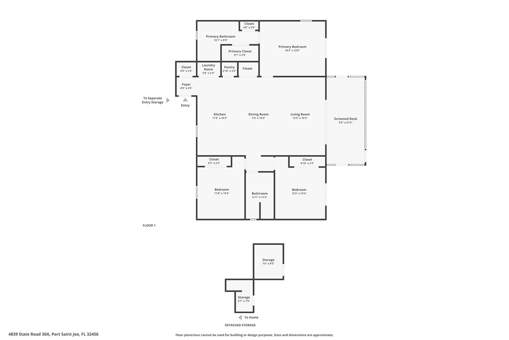
- Bedrooms: 3 Beds
- Bathrooms: 2 Bath
- Area:1700 sq ft
- Stories
- Property Type:Detached Single Family
- Acreage:0.58
- Construction:Frame,HardiPlank Type
- Lot Dimensions:100' x 253'
BAYFRONT BEAUTY situated on the head of St. Joseph bay bordering state-owned buffer preserve property, this residence offers incredible unobstructed west-facing bayfront views. Sunsets over St. Joseph Bay every evening from the comfortable screened porch will never disappoint, and the home features an open floorplan with vaulted ceilings in the great room area with a gas fireplace, 3 bedrooms and 2 full bathrooms. The warm and inviting interior promotes natural light and rich wood tones from the engineered hardwood floors and custom cabinets which compliment the home's relaxed and peaceful vibe. Plenty of ground-level storage area (including a built-in shaft for a future elevator if needed) and a large 0.58 acre yard, great for projects and gardens. Meticulously maintained, fully furnished and move-in ready, this is a great opportunity to own a slice of paradise in one of the most serene and sought-after locations on the Gulf Coast. Don't miss your chance - schedule a private tour today!
- Bay Window(s)
- Breakfast Bar
- Gas Fireplace
- Pantry
- Recessed Lighting
- Smoke Detector
- Vaulted Ceiling(s)
- Washer/Dryer Hookup
- Window Treatment All
- Covered
- Driveway
- Under House With Pad
- Cable Available
- Electricity Connected
- Internet Available
- Propane
- Water Connected
4839 SR 30-A is located just north of the Cape San Blas Road turnoff and the Treasure Bay neighborhood. Directly off SR 30-A on the bay (west) side of the road, look for the sign on property.
Property information provided by the Forgotten Coast REALTOR® Association, Inc. IDX information is provided exclusively for consumers' personal, non-commercial use, and may not be used for any purpose other than to identify prospective properties consumers may be interested in purchasing. This data is deemed reliable but is not guaranteed accurate by the MLS.

















































